Yarmouth Public Library
Yarmouth, MA
community
Ongoing
25,400 square feet
New Construction
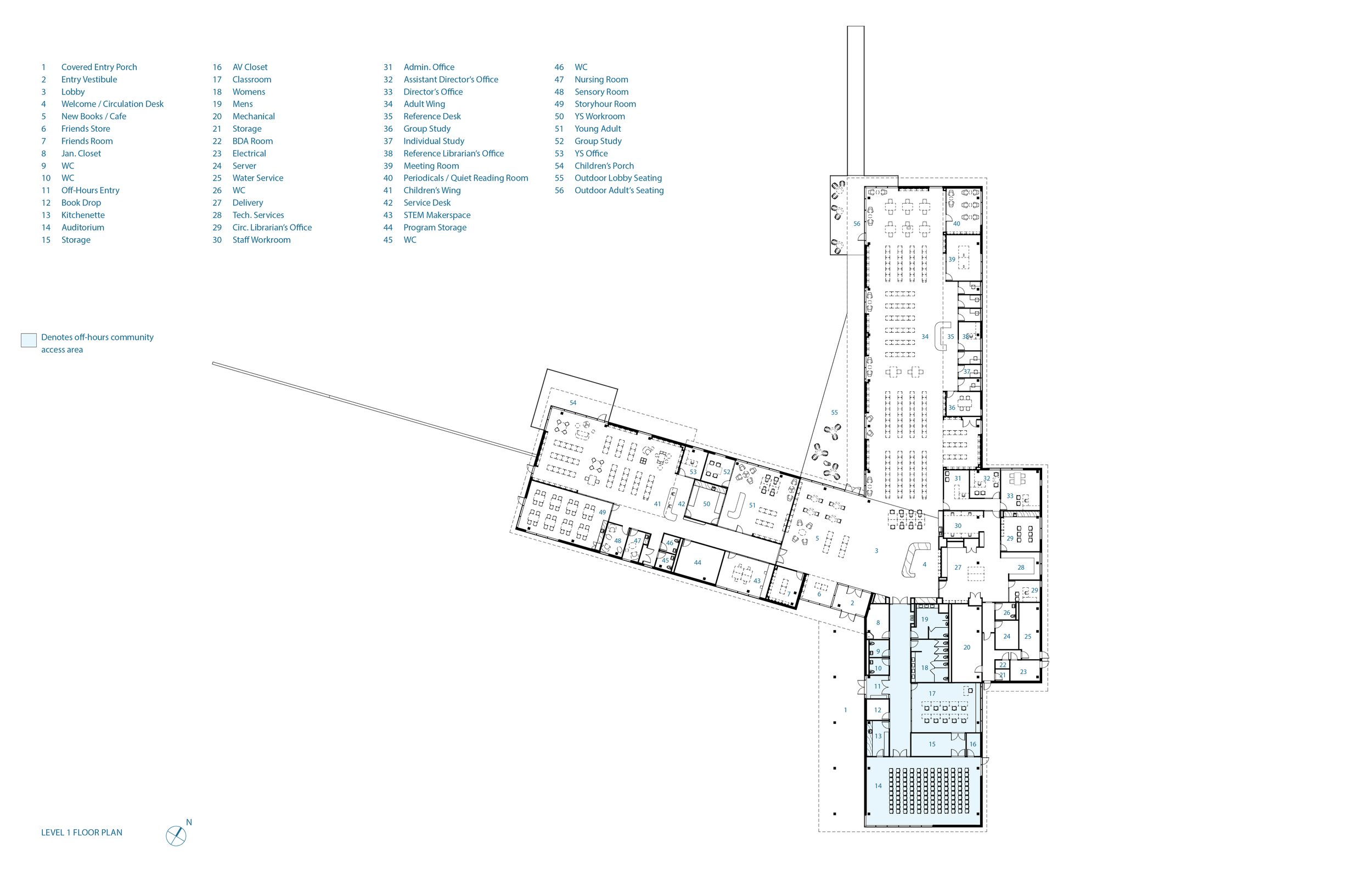
The new centrally located Yarmouth Public Library is sited strategically along an existing wooded depression, which serves as an amenity to library users and a buffer from the heavily trafficked main street. The single-story facility features an exposed mass timber structure with clear spans that maximize adaptability for evolving community needs. The building's plan centers on a welcoming central hub from which three distinct wings radiate: adult services, youth services, and community spaces. This intuitive organization ensures easy wayfinding and supports dedicated programming for children, teens, and adults, while also facilitating visual supervision by staff. Purpose-built spaces include a children's program room, teen room, STEM space, classroom, community meeting room, and multiple study/meeting rooms of varying sizes. Transparent, light-filled interiors convey a sense of openness and civic pride. The library extends to the surrounding landscape through reading porches, an entry plaza, and amphitheater-style terracing that enable flexible outdoor access and programming. Sustainability and resilience guide the facility's systems. South and east-facing roofs accommodate solar arrays to offset all-electric systems, while strategic grading and landscape buffers manage stormwater and reduce heat island effects. A backup generator powers select community spaces during emergencies, enabling the library to serve as a warming or cooling center. With universal accessibility, after-hours community space access, and strong pedestrian connections to Route 28 and Town Hall, the Yarmouth Public Library functions as a vital public resource and center of community life and activity.
Existing Conditions
New Construction
Ground Floor Plan
