Whitinsville Social Library
Whitinsville, MA
community
Ongoing
25,000 square feet
Historic Renovation | New Construction
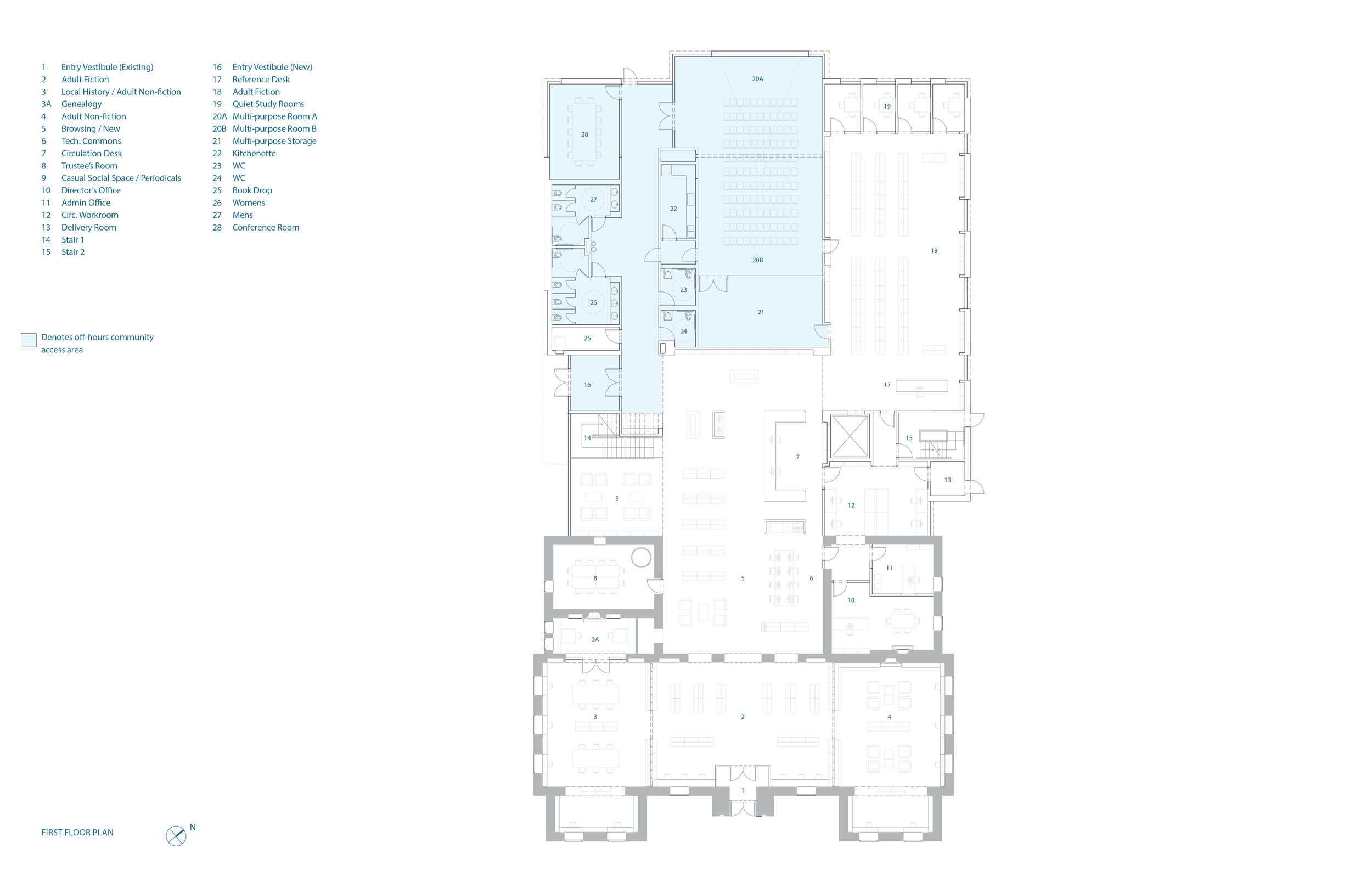
The Whitinsville Social Library has served the town well for over a century, but can no longer fulfill the requirements necessary to provide twenty-first century library services. The most significant needs relate to the dire lack of space: space for patrons, programs, staff and collections. Beyond the physical attributes of the building, the services expected have changed substantially. Programming was not considered an essential library need in 1913, whereas now it is a core function. The library’s aging building systems also require modernization to address operational deficiencies, life safety and code compliance requirements.
The plan proposes to increase the library size from 14,500 gross square feet to some 25,000 gross square feet. The design reflects a deep interest in preserving the historic building, while recognizing the need to modernize the structure to provide twenty-first century library services. Defining features, such as the existing historic wood-lined reading rooms, will be retained. Likewise, the scale and material of the addition draw inspiration from the existing library’s footprint, height, and stone construction.
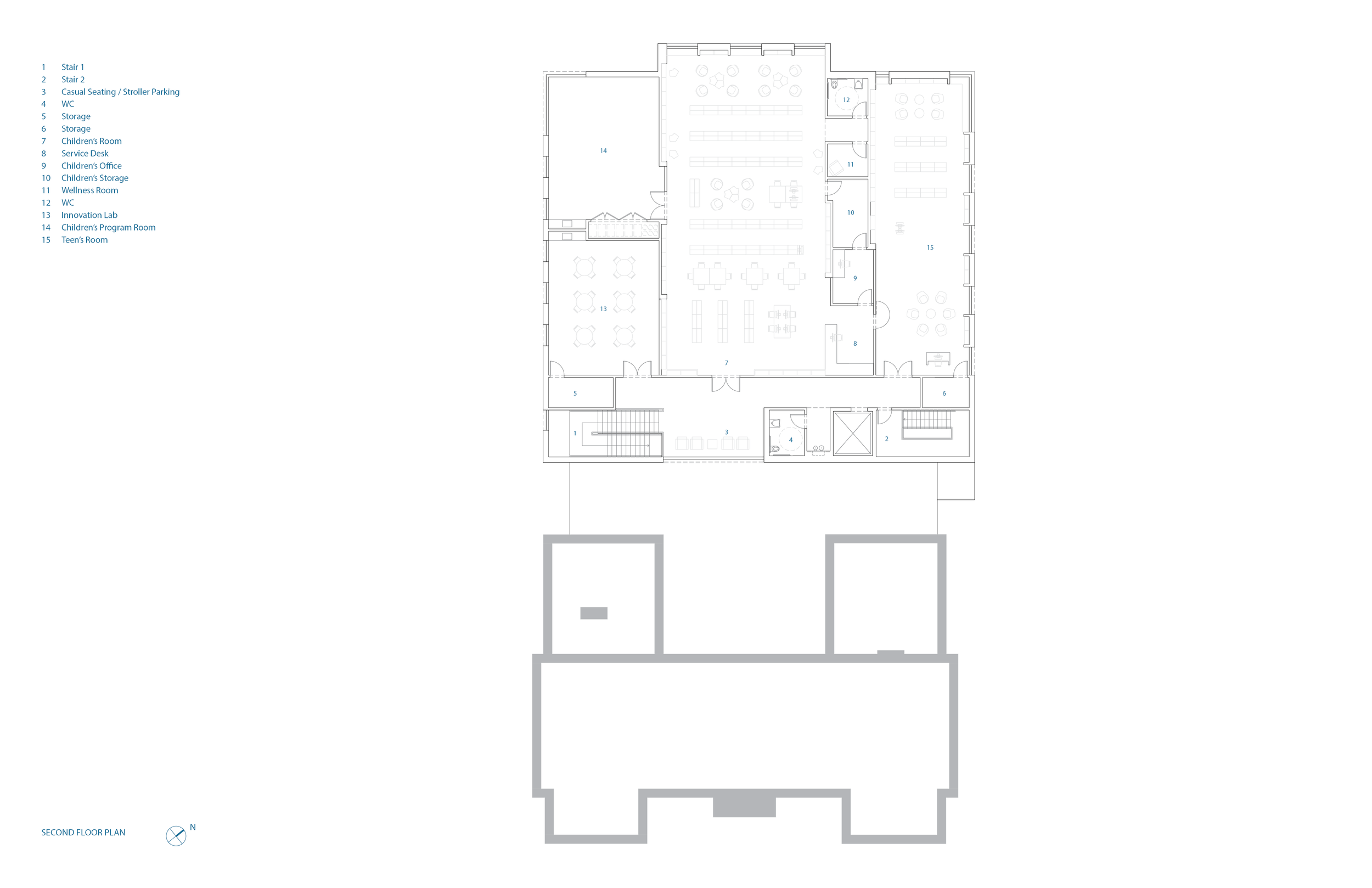
Additional spaces in the expanded library will include a large Multi-Purpose Room, a dedicated Children’s Activity Room, an Innovation Lab/Makerspace, and small conference and quiet study rooms. The Children’s Room will be enlarged and separate teen space will give high-schoolers a place to belong. There will be more space for books, comfortable seats, and community collaboration. Building systems will also be upgraded to provide efficient and cost-effective service. The staff will gain workspace appropriate to their needs. The building will be made fully accessible to all, and parking will be increased.
The scale and materials of the proposed addition are inspired by the historic building. The new entrance features stone salvaged from the original stack volume, which will be demolished, while the brick masonry complements the tone and texture of the existing library exterior. Generous glazing, including north-facing clerestory windows, brings daylight deep into the interior. A gently sloped roof accommodates rooftop solar panels.
Level 1 Floor Plan
