Snow Library
Orleans, MA
community
Feasibility Study Completed 2024
24,000 square feet
New Construction
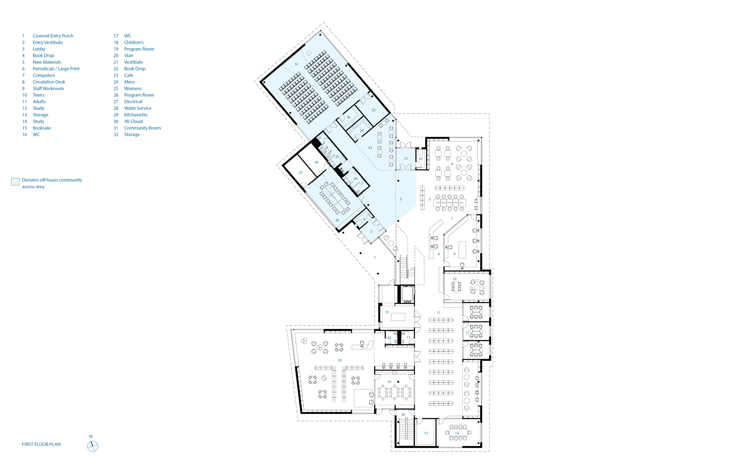
The Snow Library Feasibility Study culminated in a design proposal that reimagines the library as a light-filled, flexible, and highly connected civic space at the heart of Orleans’ Village Center. Led by Oudens Ello Architecture, the study confirmed the feasibility of replacing the existing outdated facility with a new, approximately 24,000-square-foot library on the current Main Street site—strengthening the library’s relationship to the Village Green and reinforcing its role as a central community gathering place.
The proposed design is organized to balance site constraints with a clear and intuitive plan. A two-story building allows the program to fit comfortably on the site while preserving outdoor space and improving pedestrian connections. Prominent entrances from both Main Street and the parking area lead to a central lobby that serves as the social heart of the building, supporting clear wayfinding and visual connections across program areas.
Public-facing community spaces are positioned for easy after-hours access and visibility from Main Street, while children’s, teen, and adult areas are thoughtfully arranged to support a range of activities—from quiet study to active programming—without conflict. Generous glazing, carefully proportioned floor plates, and outdoor reading areas bring natural light deep into the building and create strong visual connections to the Village Green and surrounding landscape.
The design emphasizes sustainability and long-term performance, envisioning a fossil-fuel-free, highly energy-efficient building with the potential for on-site renewable energy generation. Integrated outdoor spaces, accessible paths, and landscaped plazas further extend the library’s role beyond its walls, creating a welcoming and inclusive destination for all ages that is civic-minded, environmentally responsible, and deeply rooted in its community context.
First Floor Plan
Second Floor Plan
