Hanson Public Library
Hanson, MA
community
Ongoing
24,200 square feet
Renovation | New Construction
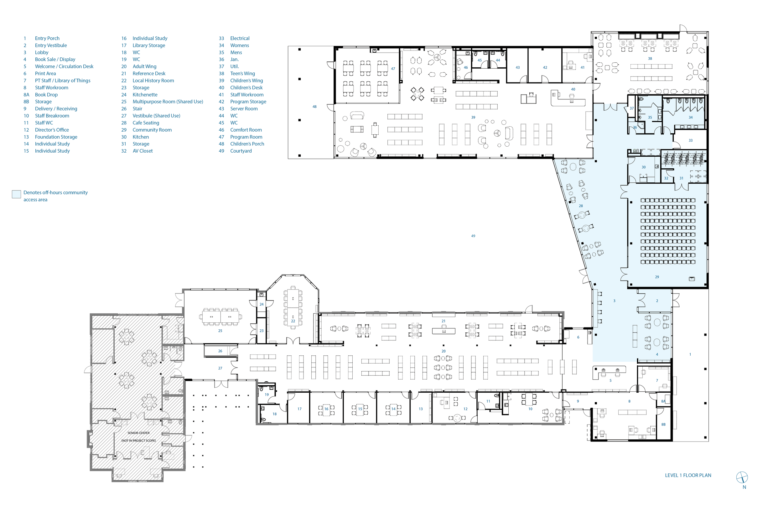
The Hanson Public Library renovation and expansion reimagines the facility as a shared "Civic Living Room," creating an inclusive environment that prioritizes openness, belonging, and connection. By seamlessly integrating a new mass timber addition with the existing timber-framed structure, the project establishes a cohesive, single-story facility defined by warmth and universal accessibility.
A generous covered porch and transparent entrance welcome visitors into a central service hub, providing clear sightlines to distinct Adult, Teen, and Children’s areas. This permeable organization supports intergenerational connection, ensuring age-specific zones remain visible for effective staff supervision while being acoustically buffered for user comfort. Future-proofing and architectural flexibility are central to the design. The new wings utilize clear spans, non-load-bearing interior partitions, mobile shelving, and minimal fixed corridors, allowing internal spaces to be fully reconfigured as library service models evolve over time.
Biophilic strategies—including abundant natural daylight, exposed wood structure, and strong physical connections to usable outdoor space—promote well-being and access to nature. Beyond its function as a library, the building is designed as a resilient community anchor. The all-electric infrastructure features a large south-facing roof primed for a substantial solar array, while a backup generator and zoned after-hours access allow the facility to serve as a hub during power outages. Ultimately, the design creates a comfortable, inclusive, adaptable facility that fosters a deep sense of community ownership and blends operational adaptability with a warm, inviting atmosphere.
Existing Conditions
New Construction
Level 1 Floor Plan
