East Falmouth Branch Library
Falmouth, MA
community
Ongoing
9,500 square feet
New Construction
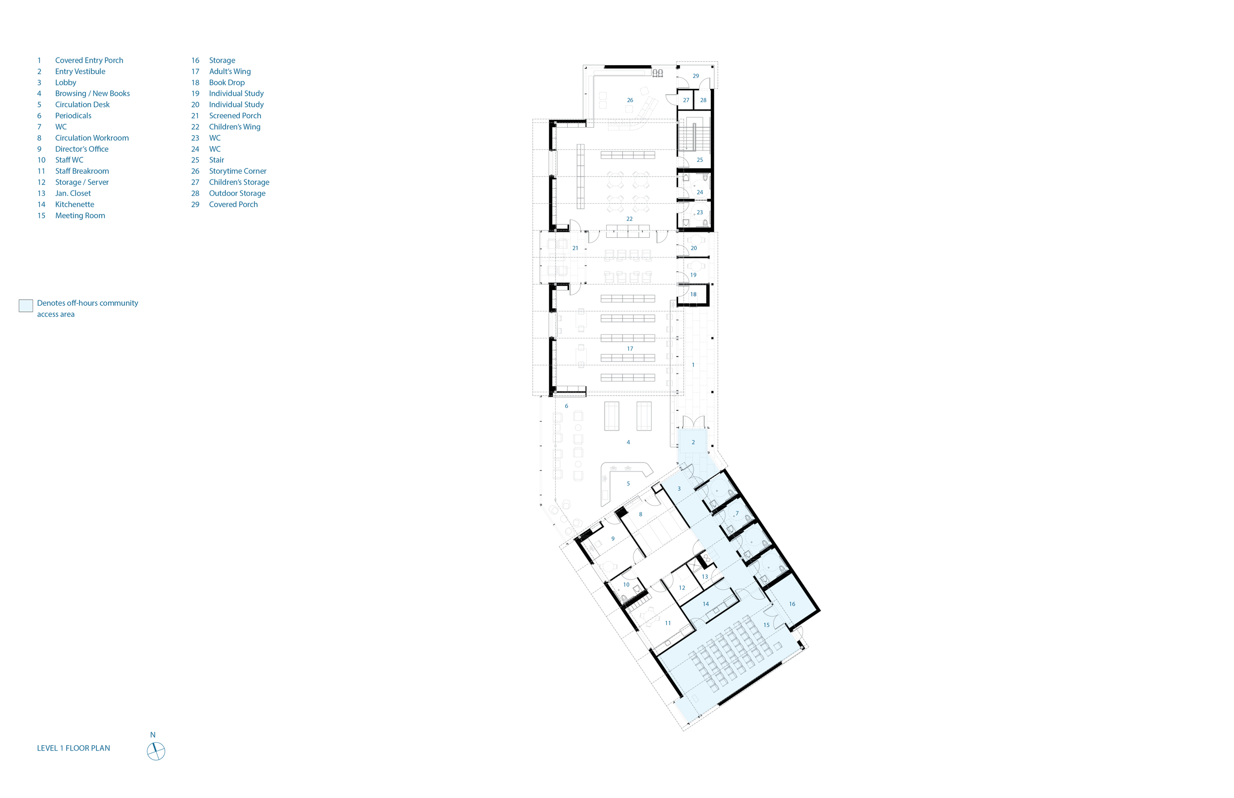
The East Falmouth Library project proposes a new, purpose-built 9,500 square foot branch library to replace the existing 5,000 square foot facility. Located on a hillside overlooking Mill Pond in East Falmouth, the current branch occupies a former single-family residence constructed in the 1950s. The non-purpose built existing building is challenged by obsolete building systems, significant life safety and accessibility deficiencies, and insufficient space to support contemporary library programs and services.
The proposed facility will be an all-electric, net-zero–ready building featuring an exposed mass timber structural system, a 3,000 square foot roof-mounted photovoltaic array, and a flexible multi-purpose community space. Expansive pond-facing glazing will provide abundant natural light and visual connection to the surrounding landscape, while a shared outdoor reading porch—situated between the adult and children’s areas—will support intergenerational use and programming. Site improvements will include expanded parking, dedicated outdoor programming areas, on-site stormwater management, and wetlands remediation designed to enhance water quality in Mill Pond. Sustainability strategies will be intentionally visible and integrated into the building’s design, positioning the library itself as an educational resource and a model of environmental stewardship and resiliency.
The project will be partially funded by the Commonwealth of Massachusetts through the Massachusetts Public Library Construction Program.
Floor Plan
