St. Paul’s School - Ohrstrom Library
Concord, NH
Academic
Study Completed 2025
Interior Renovation
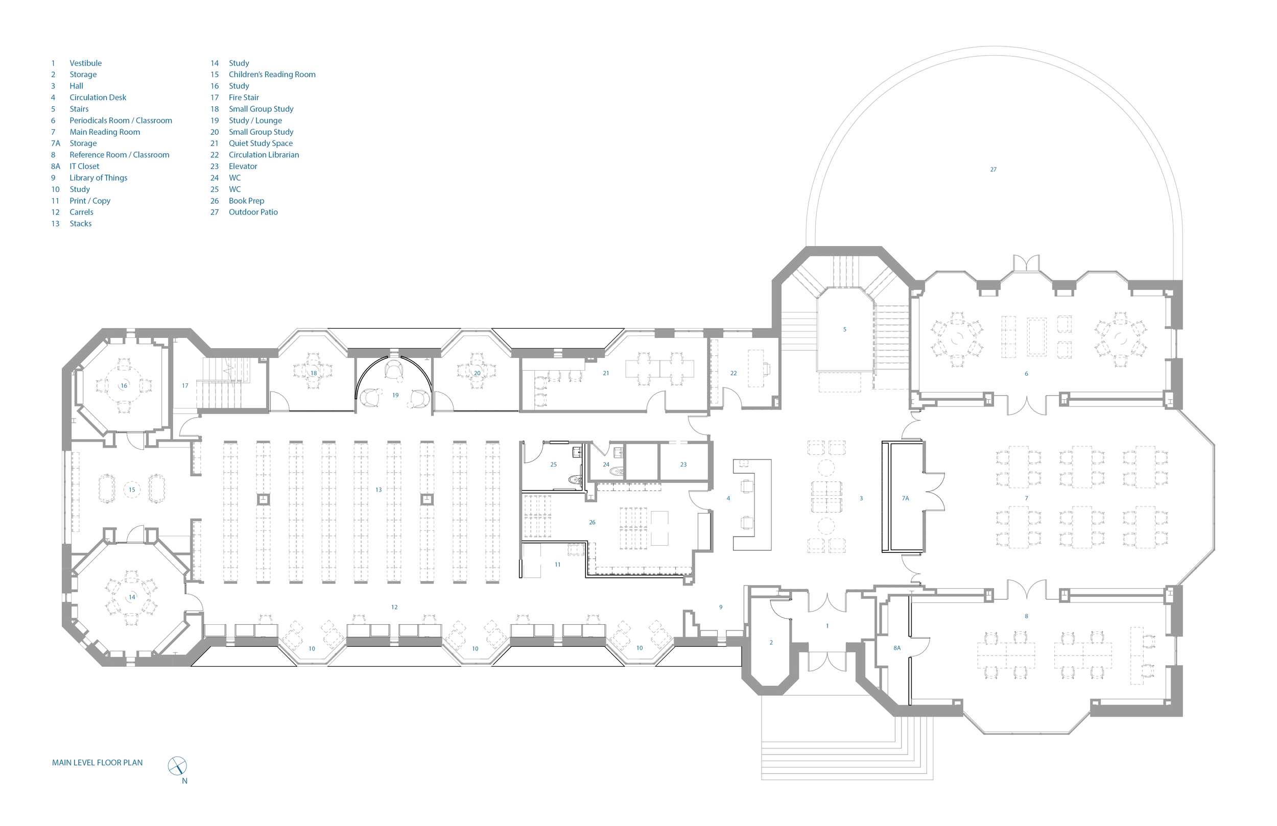
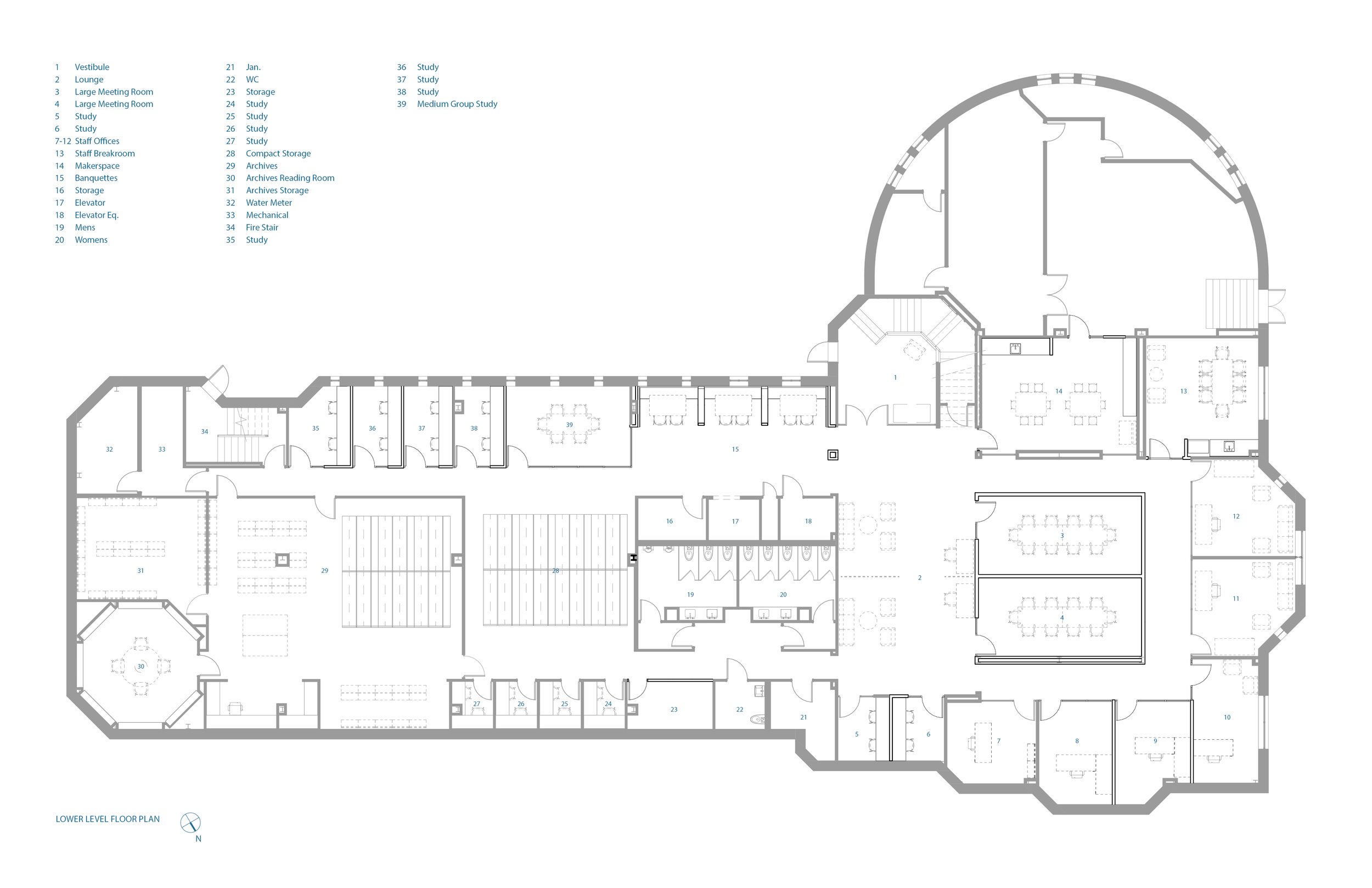
St. Paul’s School, a prestigious boarding school located in Concord, NH, hired OEA in 2025 to complete a planning study for the Ohrstrom Library. The study optimized necessary program spaces, in relation to a required deferred maintenance agenda. Converting underutilized spaces into private and group study rooms, lounge spaces, a dedicated makerspace, and additional classrooms, the proposed study provides both students and staff alike with a library that serves the needs of contemporary higher-education, all while maintaining the integrity and history of the original 1991 Robert A.M. Stern building.
Lower Level
Main Level
Upper Level
