Florence Griswold Museum
Old Lyme, CT
cultural
Ongoing
13,500 square feet
Renovation | New Construction
Historical photos of the Lyme Art Colony
At the turn of the 20th century, the Florence Griswold Museum’s 12-acre property in Old Lyme, Connecticut served as the home of the Lyme Art Colony, a nationally significant center of American Impressionism. Set within a rolling landscape along the scenic Lieutenant River, the site was both subject and inspiration for the artists who lived and worked there. During the first half of the 20th century, the property was gradually subdivided and sold; over the ensuing four decades, these parcels were methodically reassembled, forming the museum campus as it exists today. The site now encompasses the c. 1817 Georgian-style Griswold House, two former residences, and two service barns—each adaptively reused for museum purposes—along with the Krieble Gallery, a purpose-built facility completed in 2003, and a network of gardens and walking trails throughout the grounds.
In 2024, the Museum engaged Oudens Ello Architecture and Stimson (Landscape Architect) to develop a comprehensive master plan to re-envision the visitor experience from arrival through departure. Central to the planning effort was restoring and strengthening the historic relationship between the museum’s art collection and its landscape by opening up buildings that are currently inward-facing and visually isolated, and by creating clearer, more intuitive connections between galleries, outdoor spaces, and the broader campus. The master plan also evaluated opportunities for expanded gallery space, meeting and education areas, and enhanced visitor amenities.
A fundamental rethinking of arrival and circulation anchors the master plan, reconciling vehicular and pedestrian movement while carefully choreographing how visitors engage with the site. Proposed improvements include a reconfigured entry drive and visitor drop-off that enhance accessibility, safety, and clarity, while enabling broader public access to the museum’s landscape and grounds.
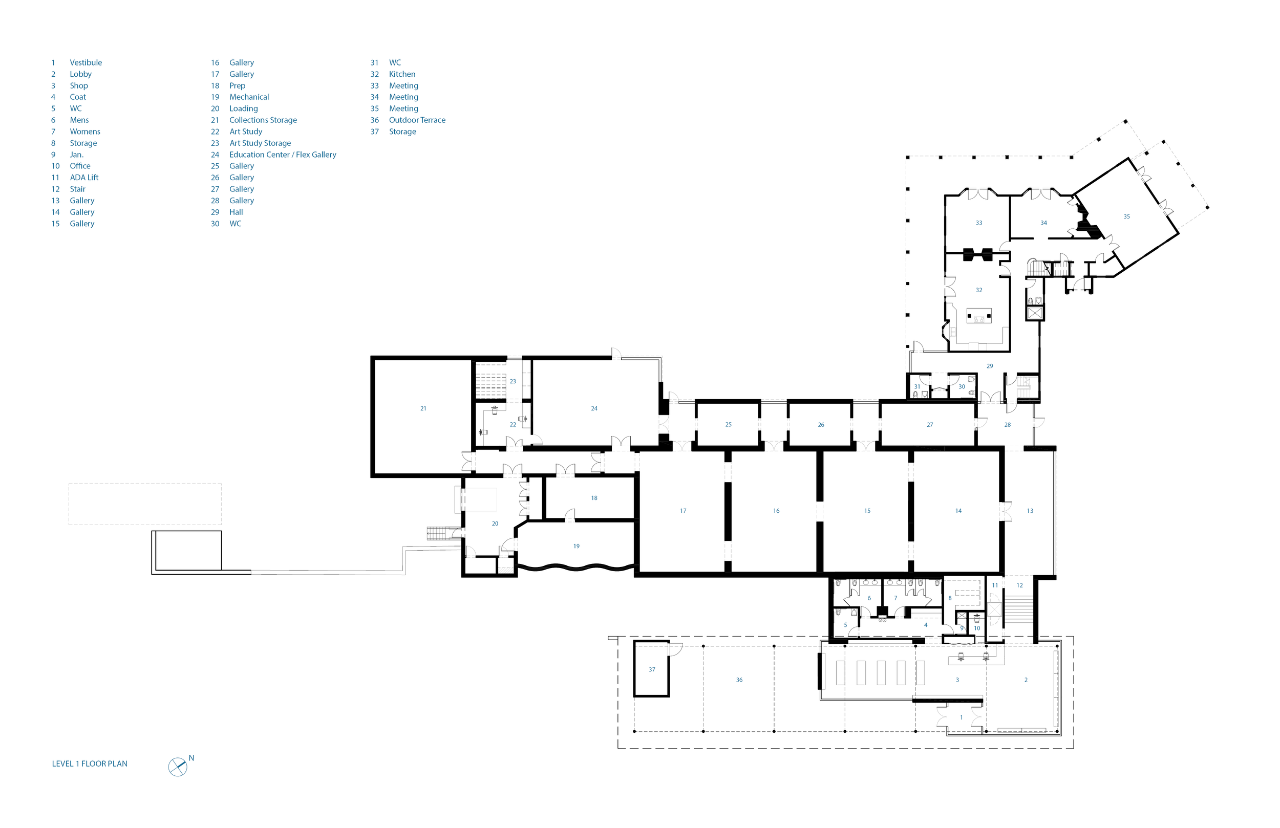
The full master plan introduces new architectural elements, including a multi-purpose entry and events porch, expanded visitor services, flexible program and event spaces, additional gallery areas, and comprehensive life-safety and building systems upgrades. Together, these interventions position the Florence Griswold Museum as a more open, connected, and welcoming campus—one that more fully expresses the inseparable relationship between place and art that defines its legacy. OEA is currently designing Phase 1 of the Master Plan, focused on the renovation and expansion of the Krieble Gallery.
Krieble Gallery - Ground Floor Plan
