Ongoing
4,200 square feet
New Construction
Net Zero
Oudens Ello Architecture was engaged, in collaboration with Reed Hilderbrand Landscape Architects, to provide architectural services as part of a comprehensive master plan for the restoration and improvement of the 120-acre Brewster’s Woods estate in Concord, Massachusetts. Situated along the Concord River, the site was the 19th-century country homestead of William Brewster, a pioneering American ornithologist and the first president of Mass Audubon.
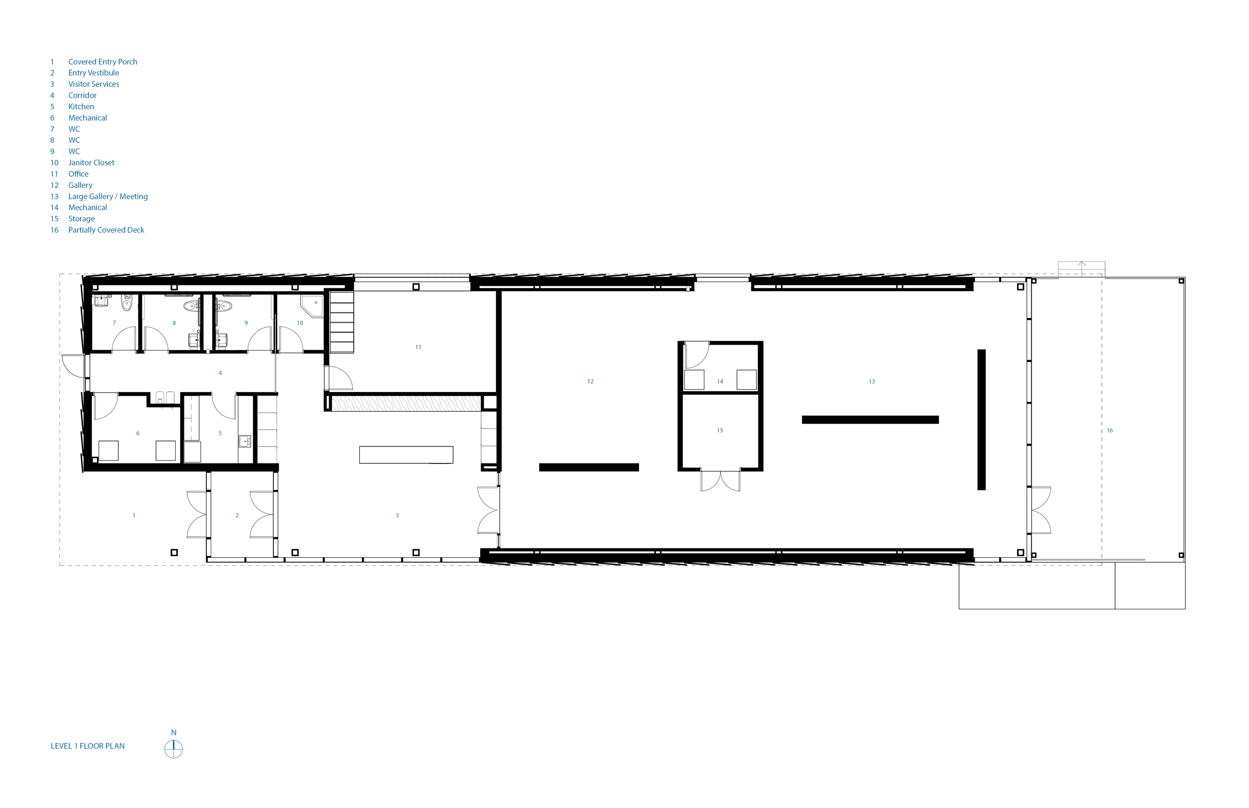
The project establishes the property as Mass Audubon’s newest wildlife sanctuary and includes a new visitor center designed to orient visitors to the landscape, interpret Brewster’s life and legacy in the conservation movement, and showcase Mass Audubon’s world-class collection of American bird art. Embracing a strategy of re-wilding previously developed portions of the site, the new 4,200-square-foot, mass-timber–framed pavilion replaces a much larger private residence and carriage house constructed in 1990 and slated for demolition as part of the project.
The building is sited along a ridgeline offering expansive views east toward the Concord River and north across a broad meadow. Serving as a threshold between the open meadow landscape to the north and the more densely wooded areas to the south, the visitor center provides access to an integrated trail network, including a new fully accessible All Persons’ Trail. The project is targeting net-zero energy performance, with on-site renewable energy generation provided by solar panels.
Floor Plan
