Sagra at Livingston Farm
Livingston Manor, NY
cultural commercial
Master Plan Completed 2022
117 acres
New Construction | Renovation
California-based Sagra is dedicated to advancing awareness of sustainable food systems by integrating guest accommodations, farm-to-table dining, and immersive educational programming focused on sustainable agriculture and regenerative practices within active farm environments across the United States. In 2021, Sagra partnered with Oudens Ello Architecture to explore the integration of hospitality components on select farm sites nationwide. Livingston Farm, a 117-acre property in Livingston Manor, New York, represents the partnership’s first design investigation.
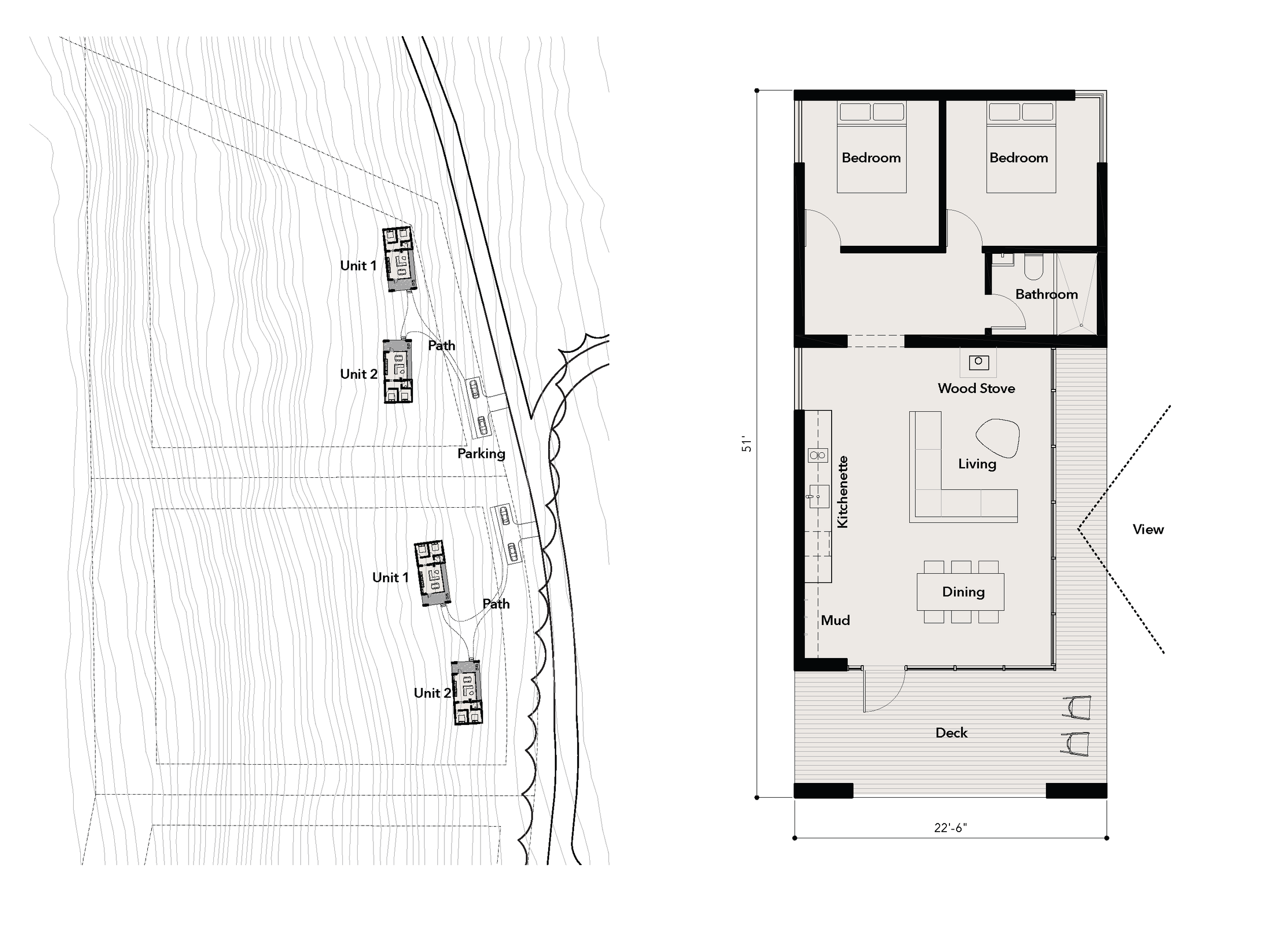
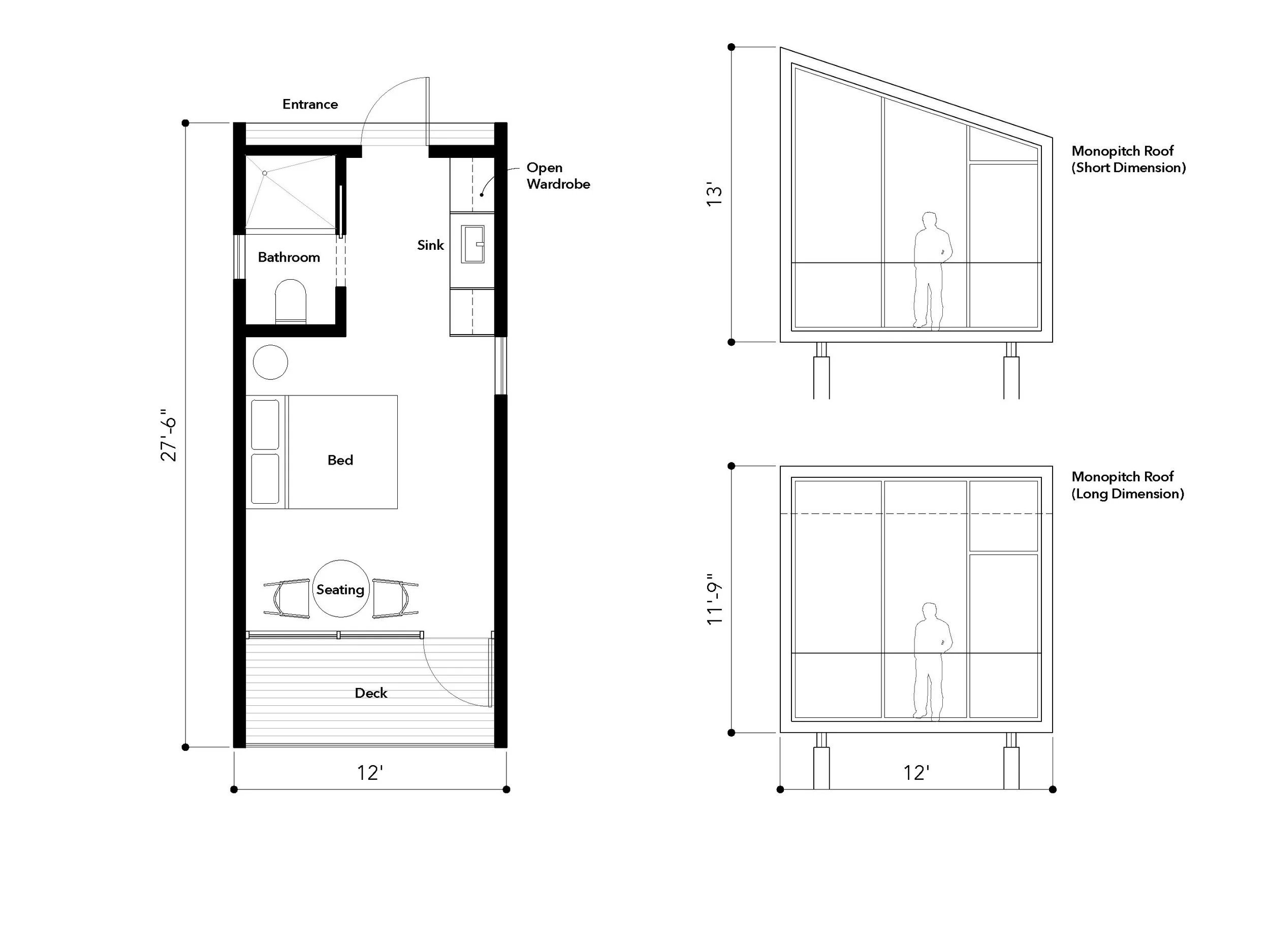
Located in the Catskill Mountains, Livingston Farm is currently an inactive agricultural property characterized by rolling fields, old-growth woodlands, and a collection of 19th-century farm structures. Sagra’s vision is to reactivate the site through renewed agricultural operations while introducing a complementary range of guest amenities. These include a twenty-room inn and guesthouse, the adaptive reuse of an existing barn to accommodate flexible multi-purpose programming, and a full-service restaurant supported by a community garden and a series of indoor-outdoor cooking and dining spaces. The full build-out will also include thirty guest cabins, thoughtfully distributed across the landscape and connected by a new path network that weaves through revitalized fields and protected woodlands.
To reinforce the project’s educational mission, all new construction will prioritize mass timber, locally sourced materials, and on-site renewable energy systems where feasible, aligning the architecture with the farm’s sustainable and regenerative agricultural practices.
Site Plan
