Nazzaro Community Center
Boston, MA
community
Ongoing
20,000 square feet
Historic Renovation & Rehabilitation
In the fall of 2024, Oudens Ello Architecture was retained by the City of Boston’s Property Management Department to undertake a comprehensive facilities condition assessment of the historic, three-story, 20,000-square-foot Nazzaro Community Center, a vital community and senior services hub serving Boston’s North End. Completed in January 2025, OEA’s assessment established the foundation for a building restoration and renovation project currently in the construction documents phase. Public bidding is anticipated in 2026, with construction scheduled for completion by the end of 2027
The renovation project encompasses extensive exterior façade rehabilitation, hazardous materials abatement, installation of a new on-site stormwater management system, and complete replacement of mechanical, electrical, and plumbing systems, including a new automatic sprinkler system throughout the building. The scope also includes comprehensive code, life-safety, and accessibility upgrades, as well as a substantial renovation of the Senior Center. Senior Center improvements include the creation of a new central communal kitchen, upgraded staff offices, renovated public restrooms, and enhanced finishes and lighting within the two multi-purpose activity and recreation rooms—strengthening the Center’s capacity to support daily programming and community gatherings.
OEA’s ongoing work with the City has involved extensive coordination with building user groups and key regulatory and oversight agencies, including the City of Boston’s Disabilities Commission, Landmarks Commission, Board of Health, Boston Water and Sewer Commission, Inspectional Services Department, and the Massachusetts Architectural Access Board, ensuring that the project responds to both community needs and regulatory requirements.
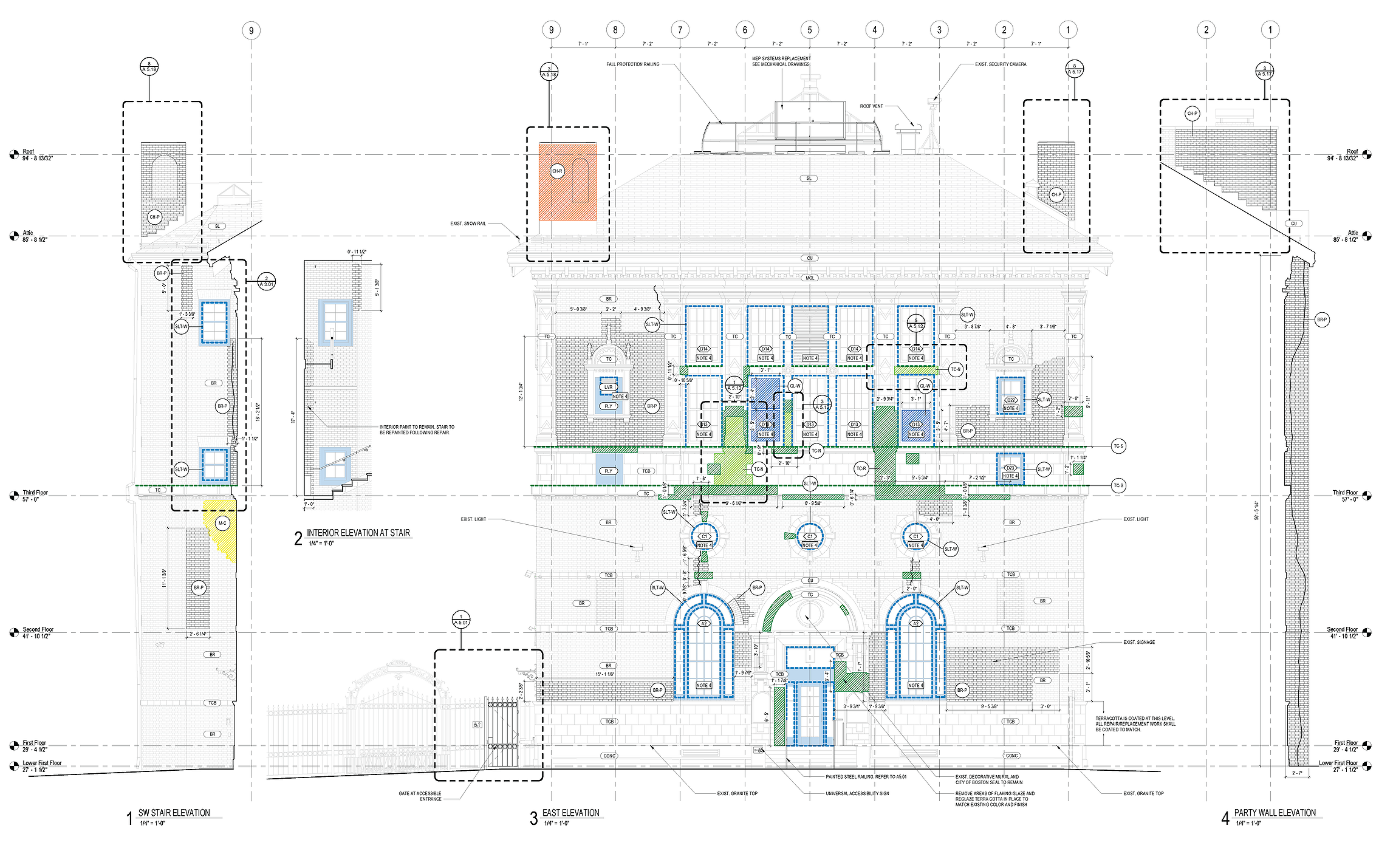
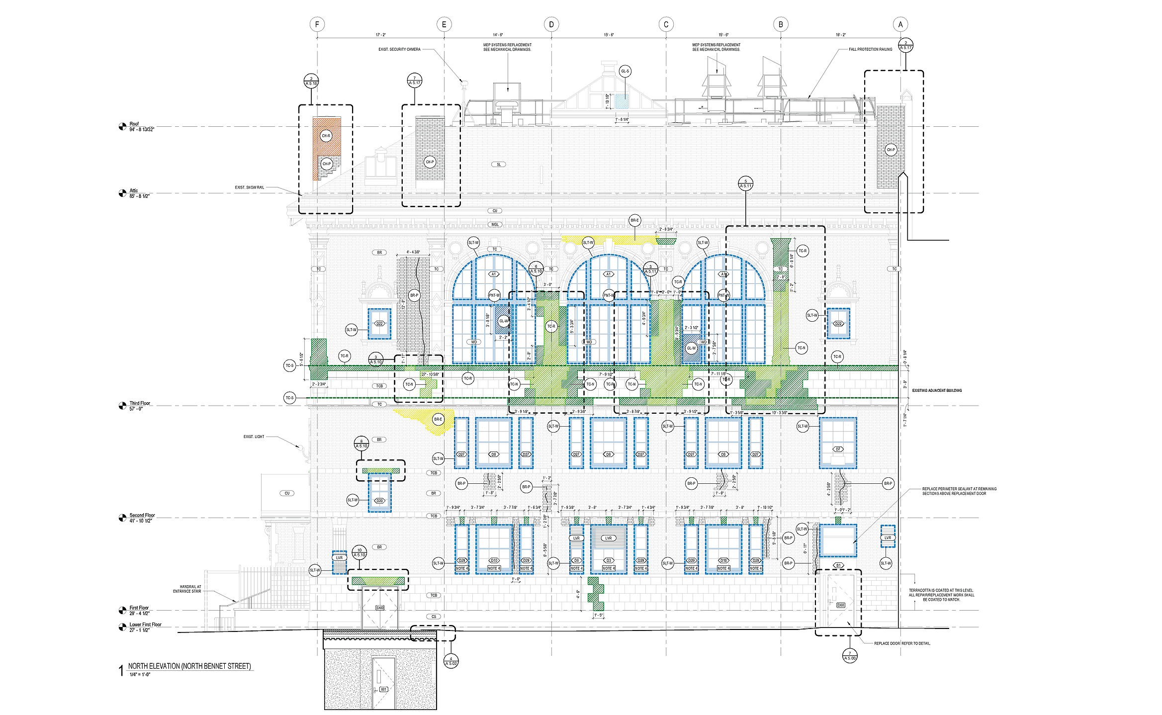
Historic Facade Repair
Existing Conditions
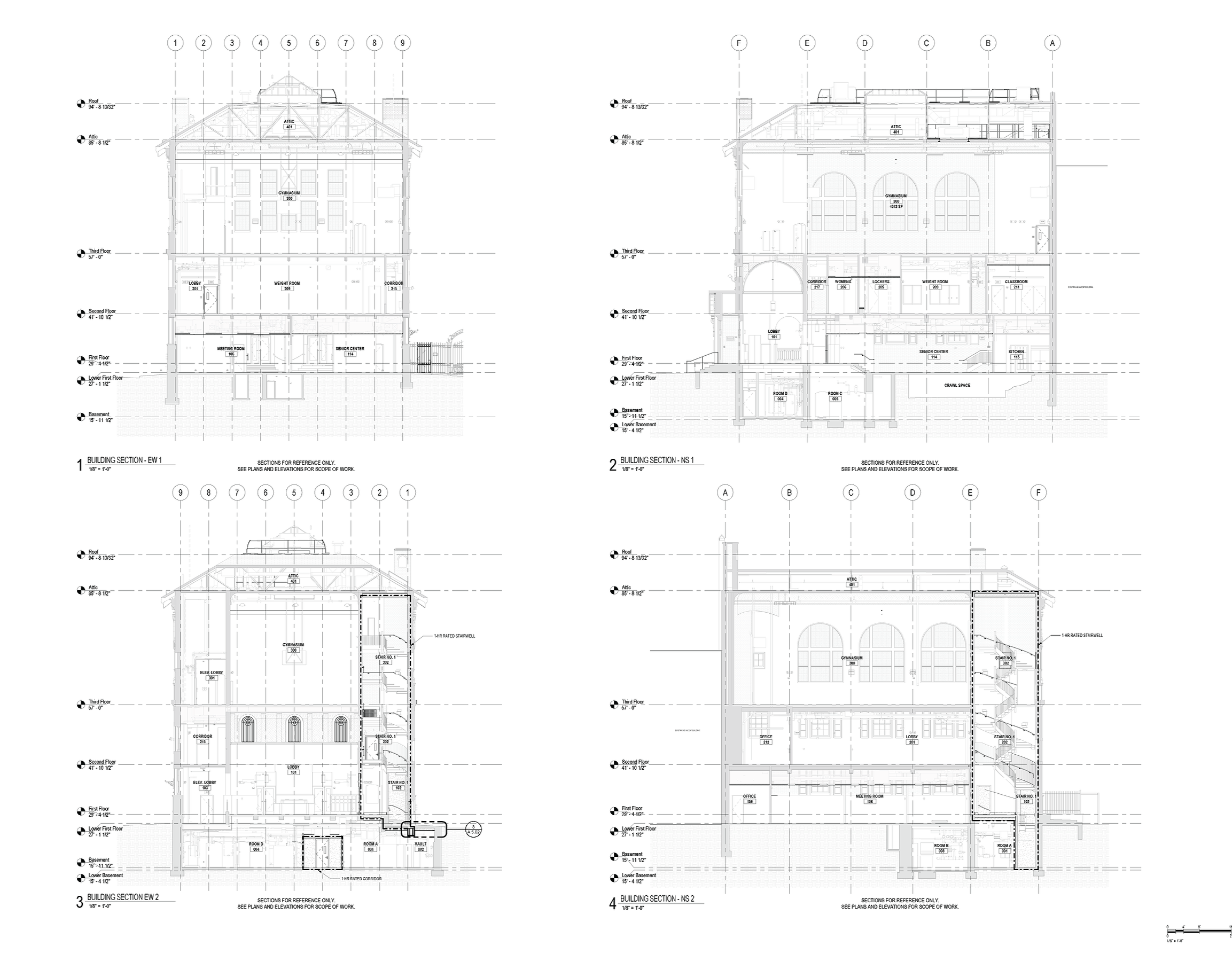
Building Sections
Existing Conditions
